印刷はこちらから
TEL:0834-32-1166
HOME
会社案内
代表挨拶
会社概要
沿革
リンク
売買物件
売土地/分譲地
中古住宅
中古マンション
新築建売住宅
事業用物件
賃貸物件
単身者タイプ
( 1K ~ 1LDK ・2Kまで)
ファミリータイプ
( 2DK・2LDK・3DK以上 )
一戸建(借家)
事務所・テナント・倉庫・貸土地
駐車場
アクセス
HOME
代表挨拶
会社概要
沿革
リンク
売買物件
売土地/分譲地
中古住宅
中古マンション
新築建売住宅
事業用物件
賃貸物件
単身者タイプ
( 1K ~ 1LDK ・2Kまで)
ファミリータイプ
( 2DK・2LDK・3DK以上 )
一戸建(借家)
事務所・テナント・倉庫・貸土地
駐車場
アクセス
お問い合わせ
お問い合わせ
Location:
MAIN
/
ファミリータイプ( 2DK・2LDK・3DK以上)
/
物件詳細
慶万借家 2階
95,000円
建物画像
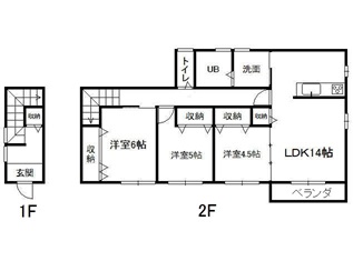
間取り図
種類
アパート
賃料
95,000円
間取
3LDK
所在地
周南市慶万町
敷金
3ヶ月
仲介料
1ヶ月+消費税
上下水道
公営
ガス
都市ガス
学校区
徳山小学校・岐陽中学校
駐車場
有
家財保険料
23,000円/2年
保証契約料・月額保証料
38,000円・2,470円/月
備考
TVインンターフォン。
駐車2台可。
追い焚き機能付浴槽。
11月末解約予定(入居中)
アオイ不動産(株)山口県周南市速玉町2番3号 TEL:0834-32-1166
アクセスマップ
アオイ不動産(株)山口県周南市速玉町2番3号
TEL:0834-32-1166
※掲載内容・地図・図面等と現況に相違がある場合は現況を優先いたします。